分析师点评
御沁园本次加推5A期所有别墅,本次在售共184套房源一并推出,其中别墅户型170-240平方米不等,总价539-900万之间,项目此次销售成交均价在35000元/平方米左右,而目前同区域在售别墅保利艾庐成交均价37000-38000元/平方米之间,相比较而言,本案价格优势明显。联排别墅共3层,一楼客厅餐厅,二楼次卧和客房,三楼主卧和书房,卧室错层排布。每户别墅赠送地下室20-30平方米不等,前后没有花园和庭院,但是顶层设为空中露台,增加户外体验,适合区域改善型且喜欢相对私密的独家居住空间的置业者。
| 户型 | 面积 | 梯户比 | 层高 | 客厅面宽 | 主卧面宽 | 主卧朝向 | 次卧朝向 | 南北通透 | 得房率 |
|---|---|---|---|---|---|---|---|---|---|
| 联排 | 171.00 | -:- | - | - | - | 否 | - | ||
| 联排 | 171.00 | -:- | - | - | - | 否 | - | ||
| 联排 | 222.00 | -:- | - | - | - | 否 | - | ||
| 联排 | 234.00 | -:- | - | - | - | 否 | - | ||
| 联排 | 234.00 | -:- | - | - | - | 否 | - | ||
| 联排 | 172.00 | -:- | - | - | - | 否 | - |
户型整体描述
项目户型基本上一样,只在面积和空间尺度上略有区分,边套较中间套则更多一个方向的采光,所以一般价格也更贵一些。户型最大的优势在于其客厅4.5m的挑高和餐厅7.1m的挑空,整体室内的空间尺度感非常好。二三层错层排布,南北向均设计卧室,可最大化利用面积。但是别墅户型比较狭长,横向面宽非常有限,顶层露台并没有宽阔的视野感,围墙遮挡后整体的户外体验分析师实地感受效果并不理想。
其他图片
该图为项目户型边套的的立体效果图,可看到每户有一个地下车位和地下室,项目客厅和餐厅一体且有4.5m的挑高,给人更强的空间尺度感和室内体验感。二三层为卧室错层分布,主次卧均可朝南,但楼层数多,业主上楼下楼容易产生不便。
上图是别墅的户型模型,从侧面可清晰看到客厅及卧室效果。主次卧均朝南,南北错层分布并带有南北阳台,卧室的舒适度整体还不错。三楼主卧的浴室偏暗,借错层露台接缝处采光,室内体验感略差。
分析师点评
御沁园户型面积从170-240平方米不等,但整体的户型布局基本没有太大差别,边套的户型更多一个方向的采光面,室内光线和宽敞度较中间套要好很多。本案毛坯交付,未来业主在室内设计和布置方面依然有很多的发挥空间,比如地下室的改造,露台的功能设计等等。项目户型由于比较狭长,横向面宽有限,于是在样板间采用了很多的镜面效果,使得室内显得不会非常局促。但实际上小面积别墅的面宽仅不到5m,整体室内入住后会有一定的局促感。
联排AS1
联排CN1
其他图片
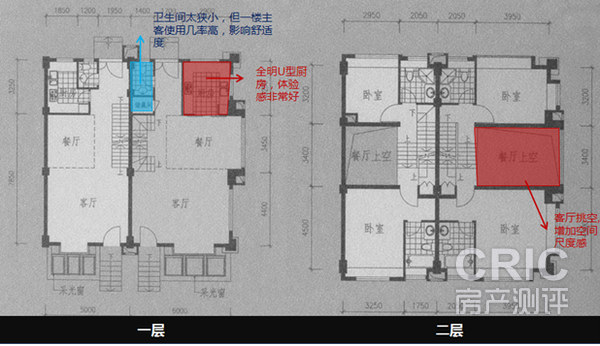
项目170平方米的户型图如上,一楼采用全明U型厨房,空间宽敞舒适,体验感非常不错。但一楼的卫生间仅2平方米左右,非常局促,开关门都显得非常吃力。二三层主次卧错层排布,南北向阳台提供了更多的室外空间。但楼梯坡度较大,若有老人和小孩,其安全性有待保障。
项目客厅层高4.5m,餐厅带有楼梯上空的挑高,层高可达7m,整体一楼的效果还是比较大气的,有别墅的奢华感。主卧层高3.15m,相比市场的3m层高的平均水平也更加优化了空间尺度。地下室赠送面积因户型面积不同而异,20-30平方米大小不等,打造成健身房或儿童娱乐室还是不错的。露台两个错层,作为室外的茶餐厅或BBQ空间也能创造出更多的生活气息。
