分析师点评
敏捷御峰国际由6栋9-17层的公寓楼组成,其中1-4栋公寓,7层以上,端户型层层退台设计,赠送超大露台面积,大大增加户型使用面积。产品主要以Loft公寓,平层公寓以及少量临街商铺为主,其中Loft公寓层高4.5米,而临街商铺为两层设计,共9.5米高,其中一层5米,二层4.5米,大多商铺均具备餐饮功能。
| 户型 | 面积 | 梯户比 | 层高 | 客厅面宽 | 主卧面宽 | 主卧朝向 | 次卧朝向 | 南北通透 | 得房率 |
|---|---|---|---|---|---|---|---|---|---|
| 三房 | 65.26 | -:- | - | - | - | 否 | 75.00 | ||
| 二房 | 63.00 | -:- | - | - | - | 否 | 75.00 | ||
| 三房 | 73.00 | -:- | - | - | - | 否 | 75.00 |
户型整体描述
项目户型有多种选择,现在预售5、6栋办公部分,设计上户型通透,临街商铺均带有厨房,可以做餐饮功能满足长隆旅游客的饮食需求,其次,大部分为公寓设计,赠送面积较大,现楼在售50-100㎡LOFT复式商务公寓现楼,9000元/平起,均价11000元/平。
其他图片
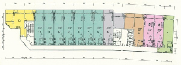
采用3梯十三户设计,对平时的电梯使用率极其高,并且从平面图可视,仅一上下楼梯并不合适居住,安全度需要提高
分析师点评
项目为商业办公、批发市场用地,在售户型有65-73㎡两房至三房毛坯发售,户型深度达13米,部分户型卧室出阳台,阻碍了大厅的采光,其他的户型相对则比较好,内部布局一般,需要选择户型取舍,对于公寓产品都做挑空产品,使得整体的空间感更强。
二房B1
二房B1
户型为两房两厅两卫
优点:
1.户型深度达13m,有利于家具的摆放
2.带两卫生间,对于两房的设计来说不错
3.有阳台
缺点:
1.入门厨房且对洗手间,不利用生活安排,其次需要抽油烟机的强力,才能保证两厅不受油烟味影响
2.客厅无法支出阳台,由卧室出阳台,保证不到住户的私密性
3.挑空设计本来很好,但因为卧室的位置,反而影响了住户的舒适度
4.一层的通道面积过长,浪费了,其次餐厅受制厅的中部二层楼梯。
二房B1
二房B1
三房C1
三房C1
户型为三房两厅两卫
优点:
1.户型为长方形有利于家具摆放
2.客厅为中空设计
3.阳台宽度与一般住宅一样、带储物间容易物品摆放
4.主卧为套间设计
缺点:
1.首层需卧室出阳台,对于私密性和透光性不足
2.餐厅位置非常窄,不能满足三卧室居住人口的日常需求
3.二层的主卧仅2.8m深,不适合
4.两卫生间均为暗卫设计,不利于通风。
5.二层的通道面积过大,浪费。
建议:
1.二层通道外部可设计悬空式会议室或屏幕
2.加强两厅间的联系
三房C2
三房C2
户型为三房两厅两卫
优点:
1.书房设计提供户型的功能多样性
2.厅出阳台,对采光有一定的保障
3.主卧套间设计
缺点:
1.书房宽度不够,大厅深度过长
2.二层虽然无通道面积,但是主卧为黑房设计
3.主卧套间洗手间内设储物间,相当不方便
三房C2
三房C2
其他图片
