分析师点评
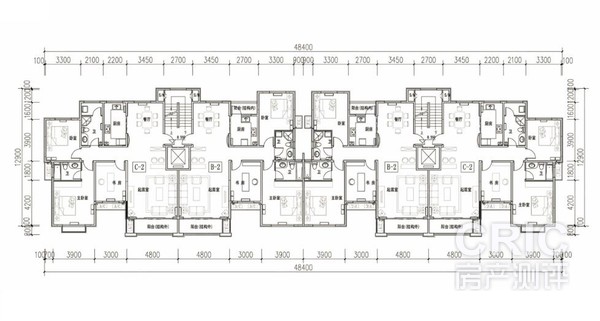
本次新开盘两个地块:
1.一个地块全是10-11层小高层,楼栋全部为两个单元,二梯三户,户型有91-102㎡(建面)两房,113-135㎡(建面)三房;
2.另一个地块,为6层洋房,大部分为3个单元,少部分2个单元,一梯两户,户型有123-153㎡(建面)三房。
| 户型 | 面积 | 梯户比 | 层高 | 客厅面宽 | 主卧面宽 | 主卧朝向 | 次卧朝向 | 南北通透 | 得房率 |
|---|---|---|---|---|---|---|---|---|---|
| 三房 | 113.00 | 2:3 | 2.90 | - | - | 南 | 北 | 是 | - |
| 三房 | 150.00 | 1:2 | 2.90 | - | - | 南 | 北 | 是 | - |
| 三房 | 134.00 | 2:3 | 2.90 | - | - | 南 | 北 | 是 | - |
户型整体描述
10-11层小高层的户型主要有,91-102㎡(建面)两房,113-135㎡(建面)三房,户型全明设计,客厅主卧南向设计,客厅带独立阳台,采光充足,生活中可以享受更多阳光;6层花园洋房的户型有123㎡-153㎡(建面)三房,舒适性相对增强,两个卧室及客厅南向设计,采光充足,客厅也是带独立大阳台,便于观赏窗外风景。整体上户型,全明设计,通透性好居住舒适度高。
其他图片
分析师点评
10-11层小高层的户型主要有,91-102㎡(建面)两房,113-135㎡(建面)三房。户型全明设计,客厅主卧南向设计,客厅带独立阳台,采光充足,生活中可以享受更多阳光;6层花园洋房的户型有123㎡-153㎡(建面)三房,更加注重舒适性,两个卧室及客厅南向设计,采光充足,客厅也是带独立大阳台,便于观赏窗外风景。整体上户型,全明设计,通透性好,居住舒适度高。
三房小高层E1
户型分析:
优点:1、户型方正,全明设计,南北通透,采光好,空气流通性好,保证了新鲜空气,和室内的干燥;2、两卧室及客厅南向设计,采光充足,客厅带独立阳台,可以观赏窗外风光,也可以放置杂物或者是晾晒衣物;3、主卧套间设计,带独立的卫生间衣帽间,增强了主人的私密性,保护了隐私;4、厨房、餐厅相邻,方便做饭和就餐,布局合理,餐厅与北向阳台相连,可作为工作阳台使用。
不足:1、一次卧北向设计,采光不足,面积小,作为卧室使用可能比较拥挤,建议作为书房使用。
三房小高层E1
在入户左手边有一个玄关空间,建议量身打造一个储物柜,进门的时候可以防止鞋子、衣帽等,能充分利用每一寸空间,非常方便实用。
三房小高层C2
户型分析:
优点:1、该户型从整体上比较方正,全明设计,南北通透,采光好,空气流通性好,保证了新鲜空气,和室内的干燥;2、主卧室跟客厅南向设计,采光充足,客厅带独立阳台,可以观赏窗外风光,也可以放置杂物或者是晾晒衣物;3、客厅、餐厅、南向阳台自成一体,显得室内空间尺度大,活动空间充足;4、厨房、餐厅相邻,方便做饭和就餐,布局合理,餐厅与北向阳台相连,可作为工作阳台使用;5、入户门处带玄关设计,方便放置鞋帽及小物件。
不足:1、两个卧室北向设计,采光有些不足,西北角次卧面积比东北次卧大些,可以作为次卧使用,东北次卧面积较小,采光也不好,建议作为书房使用。
三房小高层C2
项目户型卧室基本不带飘窗,但是项目主打旅游度假产品,建议在装修主卧的时候,可以参照图例,设计装修成飘窗,不但不影响采光,还可以更好的观赏景色。
三房洋房C-1
户型分析:
优点:1、该户型从整体上比较方正,全明设计,南北通透,采光好,空气流通性好,保证了新鲜空气,和室内的干燥;2、主次卧两间卧室跟客厅南向,采光充足,客厅带独立阳台,可以观赏窗外风光,也可以放置杂物或者是晾晒衣物;主卧套间设计,独立卫生间,增强私密性;3、客厅、餐厅、南向阳台自成一体,显得室内空间尺度大,活动空间充足;4、厨房、餐厅相邻,方便做饭和就餐,布局合理,餐厅与北向阳台相连,可作为工作阳台使用;5、房间设计动静分区,功能划分明确。
不足:1、一个卧室北向设计,采光有些不足,并且面积较小,采光也不好,建议作为书房使用。2、入户门处走廊面积过大,造成空间浪费。
三房洋房C-1
该户型为150平米的三房,舒适度还是不错的,特别是面积不是很大的户型,有时候餐厅的使用是很尴尬的,如果想使餐厅更加舒适,可以在装修时,做成玻璃墙面,这样从视觉效果上会宽敞不少。
