户型分析
户型分析-整体评价
分析师点评
昆仑域是华润置地的高端住宅产品系,济南昆仑域户型为115-165 m2四室改善型户型,采用公建化立面处理手法,将项目的人文气息与CBD的现代感相结合。
优势
品牌开发商|户型尺度舒适
| 户型 | 面积 | 梯户比 | 层高 | 客厅面宽 | 主卧面宽 | 主卧朝向 | 次卧朝向 | 南北通透 | 得房率 |
|---|---|---|---|---|---|---|---|---|---|
| 四房 | 165.00 | 2:4 | - | - | - | 是 | - | ||
| 四房 | 145.00 | 2:4 | - | - | - | 是 | - | ||
| 三房 | 115.00 | 2:2 | - | - | - | 是 | - |
户型整体描述
昆仑域户型为115-165 m2四室户型,为改善型住宅,户型方正通透,有套房设计和280度观景阳台设计,居住舒适,动静双区分隔,生活动线设计合理。
户型分析-户型分析
分析师点评
昆仑域是华润置地的高端住宅产品系,济南昆仑域户型为115-165 m2四室改善型户型,采用公建化立面处理手法,将项目的人文气息与CBD的现代感相结合。
优势
动线清晰|干湿分离|入户玄关设计|动静分离|南北通透|大面宽采光好
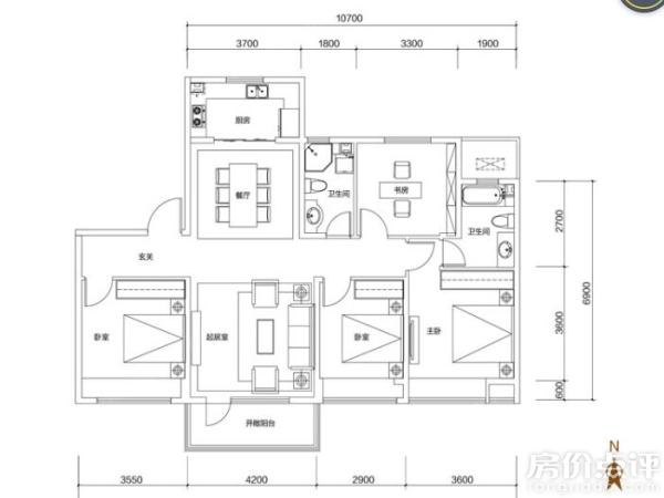
四房B户型145平米
入户玄关设计,增加居住私密性;双卧室客厅南向设计,采光充足;主卧套房设计,增加居住舒适度;餐厨一体;动静分离;
三房C1户型115平米
入户玄关设计,增加居住私密性;双卧室客厅南向设计,采光充足;主卧套房设计,增加居住舒适度;卫生间干湿分离,方便日常生活。
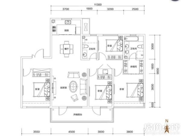
四房A户型165平米
三卧室南向设计;采光充足;客厅大观景阳台增加居住舒适度;主卧独立衣帽间卫生间,增加居住私密性舒适性;公共卫生间位于卧室客厅中间,方便生活使用;
