户型分析
户型分析-整体评价
分析师点评
中鹰黑森林三期采取全框架结构,室内只保留承重的柱子,由于全框架结构建筑造价远高于普通钢混剪力墙结构,以往只有在高档写字楼楼案例中才会出现。
全框架结构的对于住宅的好处显而易见,室内空间自由分割,可充分满足业主的不同需求。
同时开发商提供了多达30多种户型设计选择,还可根据客户的想法进行修改。目前在建的是项目三期,9、10、11号楼,其中9号10号楼已经对外发售,11号楼尚未正式公开。
优势
品牌开发商|附赠空间大|户型尺度舒适
| 户型 | 面积 | 梯户比 | 层高 | 客厅面宽 | 主卧面宽 | 主卧朝向 | 次卧朝向 | 南北通透 | 得房率 |
|---|---|---|---|---|---|---|---|---|---|
| 二房 | 231.00 | 2:4 | - | - | - | 否 | 80.00 | ||
| 二房 | 200.00 | 2:4 | - | - | - | 否 | 80.00 |
户型整体描述
采取全框架结构,室内只保留承重的柱子,空间可以自由分割,可以分割成2房至5房房型,同时开发商提供了多达30多种户型设计选择,还可根据客户的想法进行修改,并提供包括家具软装在内的一系列室内装修服务方案。
(由于项目采取定制设计,资料中的户型仅为示意图)
其他图片
室内只保留承重的柱子,空间可以自由分割(资料中的户型仅为示意图)
自由布局,户型量身定制,减少凹凸,减少与外界接触面积,降低能量损耗; 放大空间,视觉更敞阔,居住更舒适超大面积露台空间,室内外空间完美嫁接与自然近距离接触,享受悠然的天然气息。
户型分析-户型分析
分析师点评
项目采用自由分割的交付标准,较大提升了项目空间的可塑性。根据这种创新理念,对于户型的选择,分析师认为可能出现2种情况:1)如客户需要大面积户型可以整层购买作为大平层使用,居住舒适感倍增;2)若购买小户型,分割后可能会产生长进深短面宽的情况,若是南向处理为大面宽客厅,那南向卧室可则是小卧室,而主卧就只能北向处理(无论怎么自由化分割都无法避免),建议购房者对于分割户型的选择要多多考虑。
优势
大面宽采光好|270度采光
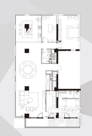
二房A-2
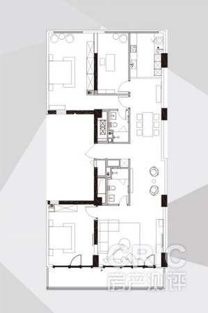
二房A-1
其他图片
进入三期样板房,我们可以看到建筑内部采用无墙体设计,给客户更多个性化改造可能。
