户型分析
户型分析-整体评价
分析师点评
项目规划有16栋小高层住宅(6-7层)、44幢联排别墅、3600平精品会所 。无限敞阔,大型无边泳池、健身房、spa房,咖啡吧、vip室,让业主享受7星级高级定制服务。
| 户型 | 面积 | 梯户比 | 层高 | 客厅面宽 | 主卧面宽 | 主卧朝向 | 次卧朝向 | 南北通透 | 得房率 |
|---|---|---|---|---|---|---|---|---|---|
| 三房 | 85.54 | -:- | - | - | - | 是 | - | ||
| 一房 | 66.13 | -:- | - | - | - | 是 | - | ||
| 二房 | 85.54 | -:- | - | - | - | 是 | - |
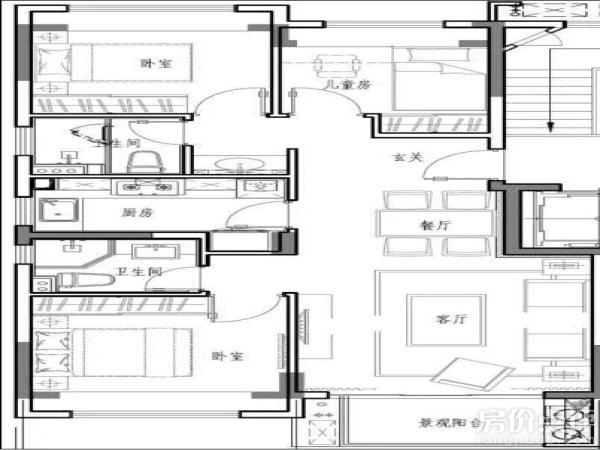
户型整体描述
户型方正,采光全明通透,每个功能空间相对独立。大人可以有大人的私密生活,小孩可以有小孩的童年秘密。南向主卧自带卫生间,套房的设计不仅增强了私密性,更让主人的居住体验感更上一个台阶。
户型分析-户型分析
分析师点评
户型总体来说南北通透,但户型比较狭长,房间中段的采光会受影响。主卧面宽约3.4米,客厅面宽约3.8米。较大的采光面能拥有比较充足的采光。但是其他两个房间朝北,采光较为一般。
一房A1
66㎡一房户型,客厅和卧室双南采光,均带有景观阳台,日照和观景双适宜。 南北通透格局,主卧带独立步入式衣帽间,小户型也能收纳充足。66㎡的建筑面积,不单新江湾少见,在全市也是稀缺的小户型产品。总价470万,入住中环豪宅聚集地新江湾,错过不再有。
三房A3
不到90平的建面却做到了三房两厅两卫,补全功能性的同时,压低了总价门槛。在空间利用率上非常高,双开间朝南,不用担心全屋的日照和采光。三口之家、二胎家庭或是和老人同住,都可满足住户对空间的需求。
二房A2
