分析师点评
项目为升龙国际的大二期,共分为三个地块。其中一号院A08地块共有一栋23层的写字楼,一栋31层高的住宅楼;A20地块有两栋楼,其中1#分为A、B两栋, 均为31层。项目整体容积率较高,业态较多,居住舒适度受影响。项目目前在售楼栋主要为一号院2#与二号院1#B座, 其中一号院2#为2个单元,二单元2T7户,一单元2T6户;1#B座2个单元,均为2T6户,户型包含66-110㎡的二房和三房,项目临近大学路段,处于繁华地段,配套较为完善,交通通达性较好,发展潜力较大,比较适合投资型客户购买。
| 户型 | 面积 | 梯户比 | 层高 | 客厅面宽 | 主卧面宽 | 主卧朝向 | 次卧朝向 | 南北通透 | 得房率 |
|---|---|---|---|---|---|---|---|---|---|
| 三房 | 115.37 | 2:5 | 2.90 | 3.50 | 3.50 | 南 | 南 | 否 | - |
| 二房 | 66.73 | 2:6 | - | - | - | 否 | - | ||
| 三房 | 91.43 | 2:6 | - | - | - | 否 | - | ||
| 三房 | 108.07 | 2:6 | - | - | - | 否 | - | ||
| 二房 | 75.87 | 2:6 | - | - | - | 否 | - | ||
| 二房 | 73.39 | 2:6 | - | - | - | 否 | - |
户型整体描述
从项目本次推出户型可以看出,本次房源主要以小三房为主,其中91平左右三房较多,适合刚需客户。所有户型中,虽然都是两厅,但是餐厅和客厅位置都不甚理想,尤其餐厅,勉为其难的占据个角落。客厅不带阳台,也会给后期生活带来不便。
其他图片
该地块有一栋23层的写字楼,以及1栋31层的高层,目前项目2#在售,户型多为38-49的一房以及64-78㎡的二房,面积小,总房款低,可缓解购房压力。
升龙天玺一号院在售的为2#,31层,两个单元,其中一单元为两梯六户,二单元为两梯七户,有两层底商。户型多为73-77平米的二房,以及少许38-49平米的一房。
分析师点评
升龙天玺一号院2#在售,户型多为75㎡左右的二房,户型设计较为类似,因该地块楼栋位置东西朝向,两卧室均超西,易受西晒影响,但其面积小,总房价低,对于刚需客户来说,此种小两房户型较为受欢迎;此外,一号院2#有38-49㎡的小户型,面积小,总价低,购房压力相对较小,因地段较为繁华,周边配套充足,该户型可作为投资或者单身人士居住;而二号院1#B座户型面积较大,多为91-109㎡的三房,户型设计两个卧室朝南,客厅及餐厅朝北,户型紧凑,基本满足业主的基本居住需求。
二房F3
二房F3
优点:
1.户型设计休息区与活动区分离,当家人与好友在客厅交谈时,不影响主人家孩子在卧室休息或者学习;且主卧室带有阳台,功能性较强,可以晾晒衣物,放置桌椅等作为一个学习区或者赏景区,但值得注意的是,晾晒衣物时需穿过卧室,卧室主人的私密性受影响;
2.两个卧室均朝西,一个卧室带有飘窗,增大了室内的空间,因楼栋的东西朝向,该户型的卧室采光受影响,飘窗可以增加采光面积,使室内较为明亮,节约用电;
3.厨房为L型,符合人体工程学原理,可以提高劳动效率,且厨房与餐厅相连,餐厨空间较大,节省了上餐时间,餐后清理打扫较为方便;
不足:
1.卫生间没有干湿分离的设计,使用浴室是容易打湿地面,家里若有儿童或者老人,容易滑倒,安全性能不高;
2.该户型客厅朝西,容易受西晒影响,且客厅窗户较小,采光不足,白天进入客厅需开灯照明,浪费用电;
二房F5
二房F5
优点:
1.该户型两个卧室均朝东,且带有飘窗,扩大了房间的空间感,采光效果较好,居住舒适度较高;
2.客厅虽朝北,带连接有东向的大面积阳台,采光光景效果较好,增强了户型的功能性,可以晾晒衣物,亦可种植花草以及蔬菜等,富有生活情趣;
3.L型厨房的设计,符合人体工程学原理,家人烹饪美食时操作方便,节省了不必要的劳动,大大提高了劳动效率。
不足:
1.卫生间没有做干湿分离的设计,同时使用较为不便,且清理打扫时较为不便;
2.入户即为餐厅,该部分空间利用率不高,有一定面积浪费;
二房B6
二房B6
优点:
①动静分离;休息和活动互不干扰,保持相对的独立性。
②次卧室带飘窗,主卧带阳台,增加了卧室的空间感,扩大卧室采光性。
③洗手间在两个卧室旁,方便主人使用。
不足:
①过道狭长,浪费使用面积
②客厅只有飘窗,且朝北,采光性不佳,客厅没有阳台晾晒衣服非常不便,如果在主卧阳台晾晒家庭衣物,影响主人休息,非常不便
③ 餐厅正对入户门,没有隐私性,位置也非常不方便。
三房A2
三房A2
优点:
1.活动区域与休息区域分隔开,晚上和三五个好友客厅聚会聊天,不会影响老人和孩子在房间内休息或学习;
2.厨房与餐厅相连,打造半开敞式餐厨空间,活动空间更加充足,可减少上餐时间,同时避免油烟味以及饭菜味道扩散到休息区;
3.两个卧室均朝南,三个卧室带有飘窗,扩大了室内空间感,客厅带有生活阳台,可晾晒衣物,实用性更强;
不足:
1.客厅和餐厅采光性较差,白天需要开灯才能享用很好的光线
2.走道较为狭长,无法有效利用,空间利用率较低,有一定面积浪费;
3.卫生间和厨房采光不好,光线较暗,且卫生间干湿不分离,对于有老人或者孩子的家庭来说,安全性能不高。
三房B4
三房B4
优点:
① 动静分离,休息和活动区域互不干扰。能够在聚会的时候不会影响家人休息
② 主卧带阳台,次卧带飘窗,增加卧室空间感,增强光线
不足:
① 客厅和书房光线很弱,靠天井采光。尤其客厅没有阳台,晾晒衣服都非常麻烦,卫生间采光也很弱。
三房D1
三房D1
优点:
① 主卧带阳台,次卧带飘窗,增加卧室空间感,增强光线
② 卫生间在三个卧室中间,方便使用。尤其方便晚上老人和孩子起夜上卫生间
不足:
① 客厅和餐厅朝北向,光线不足,客厅没有阳台,也不方便晾晒衣物。
其他图片
入门区:主要指入门玄关即门厅的设计
玄关原指佛教的入道之门,现在泛指厅堂的外门,也就是居室入口的一个区域 ,避免房间一览无余。
(1)玄关设计的三要素:鞋柜,衣柜,对景墙;
(2)对于小户型,玄关不需要占太大面积,一般宽度在1200mm。放置800-1000mm宽,300mm左右深鞋柜足以。
(1)经济型户型客厅面积在10㎡以上.; (2)进深方向考虑三人沙发及一组单人沙发,至少大于3000mm; (3)同时需考虑视觉效果,目前市场电视观看视觉为屏幕对角线3倍,以普通40英寸电视为例,合理视距为3000mm,除去沙发及电视与墙距离,净开间尺寸在3300mm。
三人沙发长度深度分别为1700~2400mm,800m-900mm;双人沙发长度、深度分别1300~1600mm单人沙发长度、深度600~900mm, 850~950mm;电视柜深度400~600mm,常见的茶几长1000m~1400m,宽400~800mm,方形1200~1400mm。
餐厅是日常进食的主要场所,每套户型都应该设置独立的进餐空间。餐厅的设置方式主要有三种:独立餐室、客厅兼餐室、厨房兼餐室。 a.经济型的餐厅使用面积6㎡以上;b.餐厅的空间尺寸需要考虑座登和人同行的活动空间:人通行宽760mm,人座位占用宽520mm;c.可靠墙布局,靠墙面尺寸3000mm。 注:4-6人餐桌一般长度1000-1400mm,宽度600-1000mm 厨房的设计除考虑人体和家具的尺寸外,还应考虑家具的活动便捷、操作方便。 此外,厨房主要分为操作厨房(K型厨房)、餐室厨房(DK型厨房)、起居餐室厨房(LDK型厨房)3类,厨房布局形式包括I型 、L型、U型、II型 、岛型。经济型厨房主要考虑I型、L型厨房,其余占用面积较大时不利于操作台布局。 (1)I型厨房系列 这类两点一线式厨房适用于狭长的房间。占用面积较小,要想达到理想效果,一面墙不能短于3000mm。I型厨房储存的净宽要求1500mm以上,净长3000mm左右,经济型户型厨房操作台尺寸2100mm。 其他:冰箱宽:580-630mm,双开门900mm;水槽宽:770-820mm;灶台宽:700-750mm 微波炉宽:480-520mm。
经济实用书房主要考虑办公桌及书架设计,另外可增加休闲区域,一般5㎡左右房间即可布局。 从家具考虑:电脑桌:长800-1200mm,宽480-620mm;书架:宽600-2100mm,宽较为灵活,深240-280mm;双人沙发:宽1200-1700mm,深600-900mm。 (2)L型厨房系列 这类厨房的橱柜沿着两面相邻的墙布置,非常适用而高效,舒适型厨房中较为实用,L型厨房的净宽要求1800mm以上,净长3000mm以上。
经济型次卧主要考虑儿童房间布局、单人或者双人次卧。家具摆放无需较为复杂,根据不同使用功能,合理尺寸不同。 经济型次卧受面积控制,单人次卧可考虑只放置床及衣橱,面积在6-8㎡之间。单人床:长2000mm-2020mm,宽1200-1220mm;床头柜:宽450-600mm;衣橱:深550-600mm;门:宽900mm。 1.对于经济型次卧儿童房布局,考虑到电脑及书架,衣橱等,在面积受限制下:开间净尺寸可≥2400mm;进深方向可≥3000mm。 具体尺寸:①单人床:长2000mm-2020mm,宽1200-1220mm;②衣橱:深550-600mm;门:宽900mm;③书架:深240-280mm;④电脑桌:宽800-1400mm,深480-620mm;⑤座椅:宽450-650mm,深450-600mm。 2.双人次卧,增加一定舒适性及实用功能,卧室净开间尺寸≥3000mm,可设置梳妆台;进深方向减少一个床头柜,增加活动空间,进深净尺寸≥3000mm。 具体尺寸:①双人床:长2000mm-2020mm,宽1500-1520mm;②衣橱:深550-600mm;③门:宽900mm;④梳妆台:800-1200mm,深400-550mm;⑤座椅:宽550-650mm,深450-600mm;⑥床头柜500-600mm。
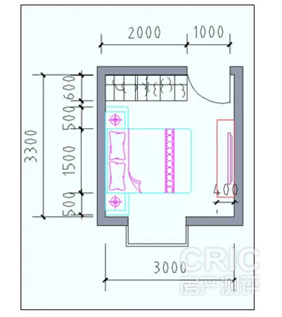
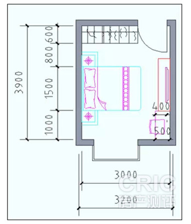
经济型主卧考虑床榻和更衣区,以及影视功能。 (1)主卧:10㎡以上 从家具方面考虑: ①净宽:床长度2000mm+卧室门1000mm,开间≥3000mm; ②进深:床宽1500mm+床头柜1200mm+衣橱600m,尺寸≥3300m ③从影视方面考虑,市场34-37寸液晶电视合理视距在2600mm-2850mm,结合建筑设计《必须遵循建筑模数协调统一标准》以300mm、600mm…作为水平模数,所以要求主卧开间在3000mm以上。 ④其他尺寸:双人床:长2000mm-2020mm,宽1500-1520mm;衣橱:深550-600mm;门:宽900mm;床头柜500-600mm;电视柜:宽600-2400mm,深400-600mm。 (2)净进深增加到3900mm以上,可设置梳妆台800-1200mm宽,人的活动空间加大。 从家具方面考虑: ①双人床:长2000mm-2020mm,宽1500-1520mm;②衣橱:深550-600mm;③门:宽900mm;④床头柜500-600mm;⑤梳妆台:800-1200mm,深400-550mm;⑥座椅:宽550-650mm,深450-600m;⑦电视柜:宽600-2400mm,深400-600mm。
