户型分析
户型分析-整体评价
分析师点评
静安花园整体装修标准在15000元/㎡,但其内部装修仅在一般豪装水平,性价比不高。但其地理位置极佳,总体均价较周围二手房稍占优势。且其户型从二房至五房都有,选择性大。
优势
品牌开发商|户型尺度舒适
不足
得房率低
| 户型 | 面积 | 梯户比 | 层高 | 客厅面宽 | 主卧面宽 | 主卧朝向 | 次卧朝向 | 南北通透 | 得房率 |
|---|---|---|---|---|---|---|---|---|---|
| 二房 | 127.88 | -:- | - | - | - | 是 | - | ||
| 三房 | 150.40 | -:- | - | - | - | 是 | - | ||
| 三房 | 188.21 | -:- | - | - | - | 是 | - | ||
| 四房 | 177.66 | -:- | - | - | - | 是 | - | ||
| 五房 | 233.54 | -:- | - | - | - | 是 | - |
户型整体描述
南北通透,通风性佳,客厅面朝北,朝向不佳,且餐厅面积过大,浪费过道面积。
其他图片
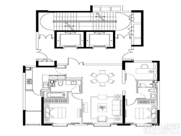
户型分析-户型分析
分析师点评
五房中两房朝北,且客厅朝北,餐厅面积过大,过道面积浪费。
优势
干湿分离|南北通透
不足
过道面积浪费|朝南房间少|次卧空间较小
五房E
五房中两房朝北,且客厅朝北,餐厅面积过大,过道面积浪费。
四房D
卧室均朝南,动静分离,干湿分离,且有独立卫生间,户型较好。
三房B
卧室均朝南,采光较好,卫生间配备较多,略浪费空间。
